Das Haus

Die Skogsborg von Westen Die Skogsborg liegt auf einer Waldlichtung von ca. 8 ha Größe (mittlerweile schon wieder sehr zugewachsen) und besteht aus einem Haupthaus mit einem Nebengebäude, beides 1976 erbaut.

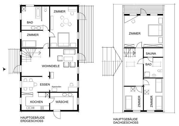
1) Das Haupthaus

Holzbauweise, 160 m² Wohnfläche, Elektroheizung,
EG: Wohnzimmer mit Holzofen, komplett ausgestattete Küche, ein gemütliches Zimmer mit Doppelbett, großes Bad mit WC und Badewanne, kleines Kinderzimmer, Hauswirtschaftsraum mit Waschmaschine, Holzterrasse vor dem Haus.
OG: ein großes Schlafzimmer mit Doppelbett und Balkon ("Balkonzimmer"), ein kleines Einzelzimmer ("Kranichzimmer"), ein kleines Doppelzimmer ("Wildgänsezimmer"), WC und Dusche mit kleiner Sauna.
Grundriss Haupthaus

2) Die Stuga (kleine Wohnung im Nebengebäude)

Grundriss Stuga (im Nebengebäude) Bauweise wie das Haupthaus, 40 m² Wohnfläche, Heizung elektrisch oder mit Holz-Kachelofen im Wohnzimmer, ein kleines Schlafzimmer mit Doppelstockbett und einem Schreibpult, Wohnküche mit Eßecke, E-Herd, Kühlschrank, WC und Dusche, das Sofa im Wohnzimmer kann zum Doppelbett ausgezogen werden.

In etwa 150 m Entfernung steht ein zweites Wohnhaus mit einer Scheune anbei, 1920 errichtet. 
Das Wasser für alle Häuser wird aus einem eigenen Brunnen gefördert. Technische und organisatorische Einzelheiten können in den dort liegenden aktuellen Hinweisbüchern nachgelesen werden. 

Skogsborg - Luftbild vom Hubschrauber 2006